galéria, M4 metróvonal, műszaki rajzok, ábrák

Tartalomjegyzék

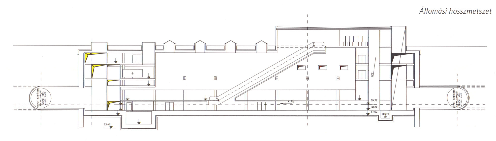
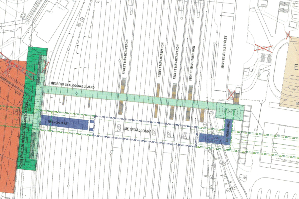
Hossz-szelvény

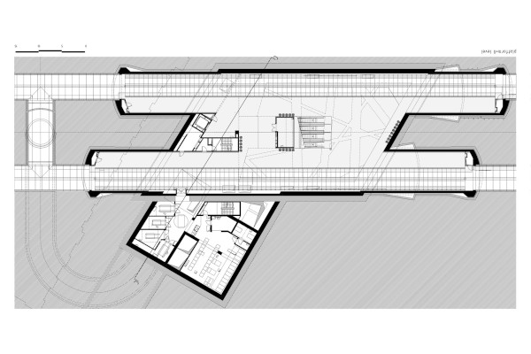
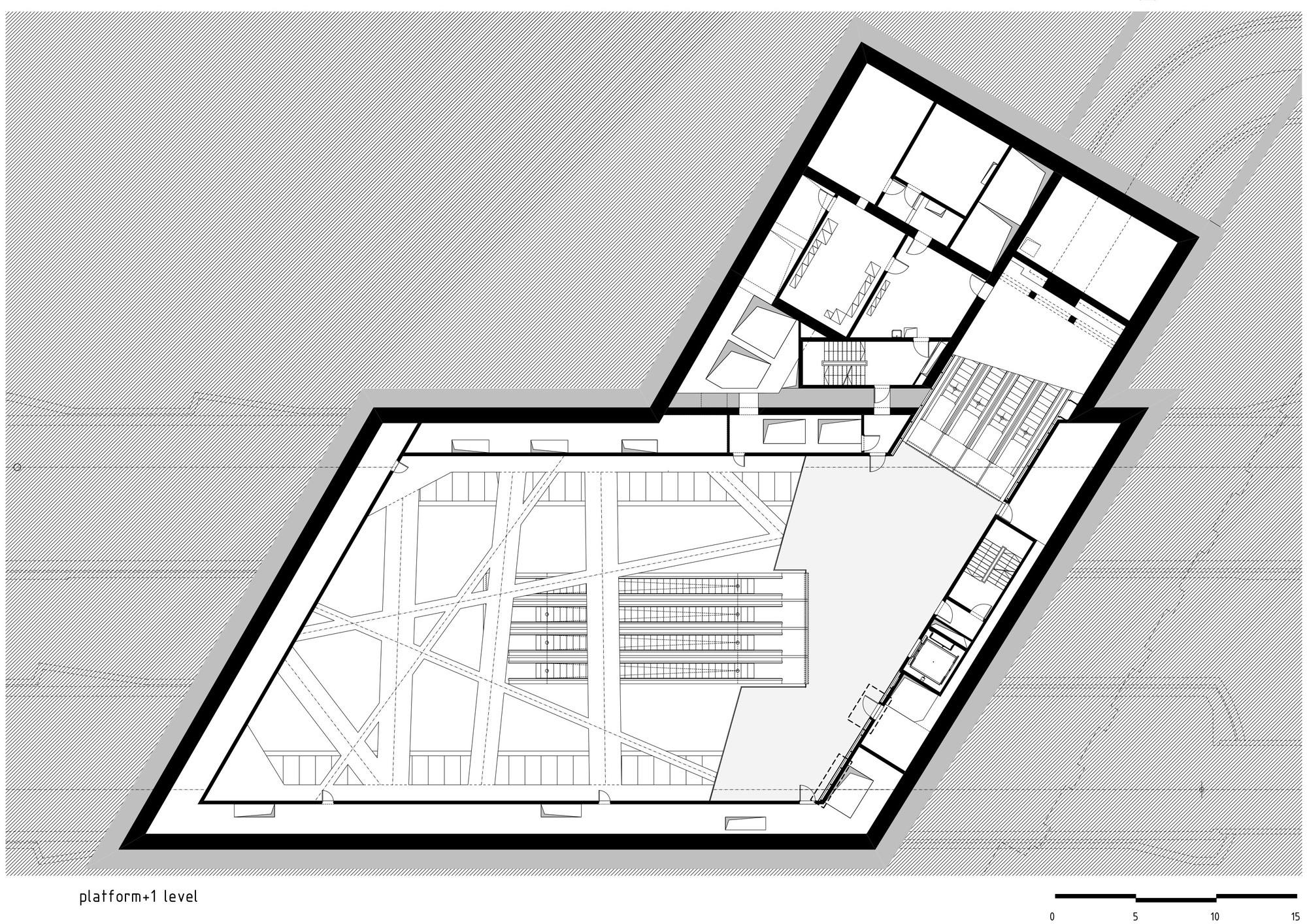
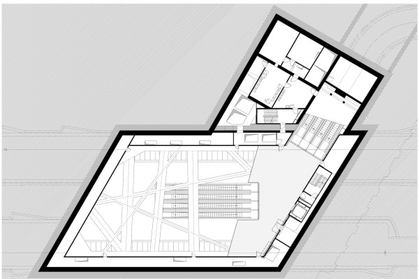
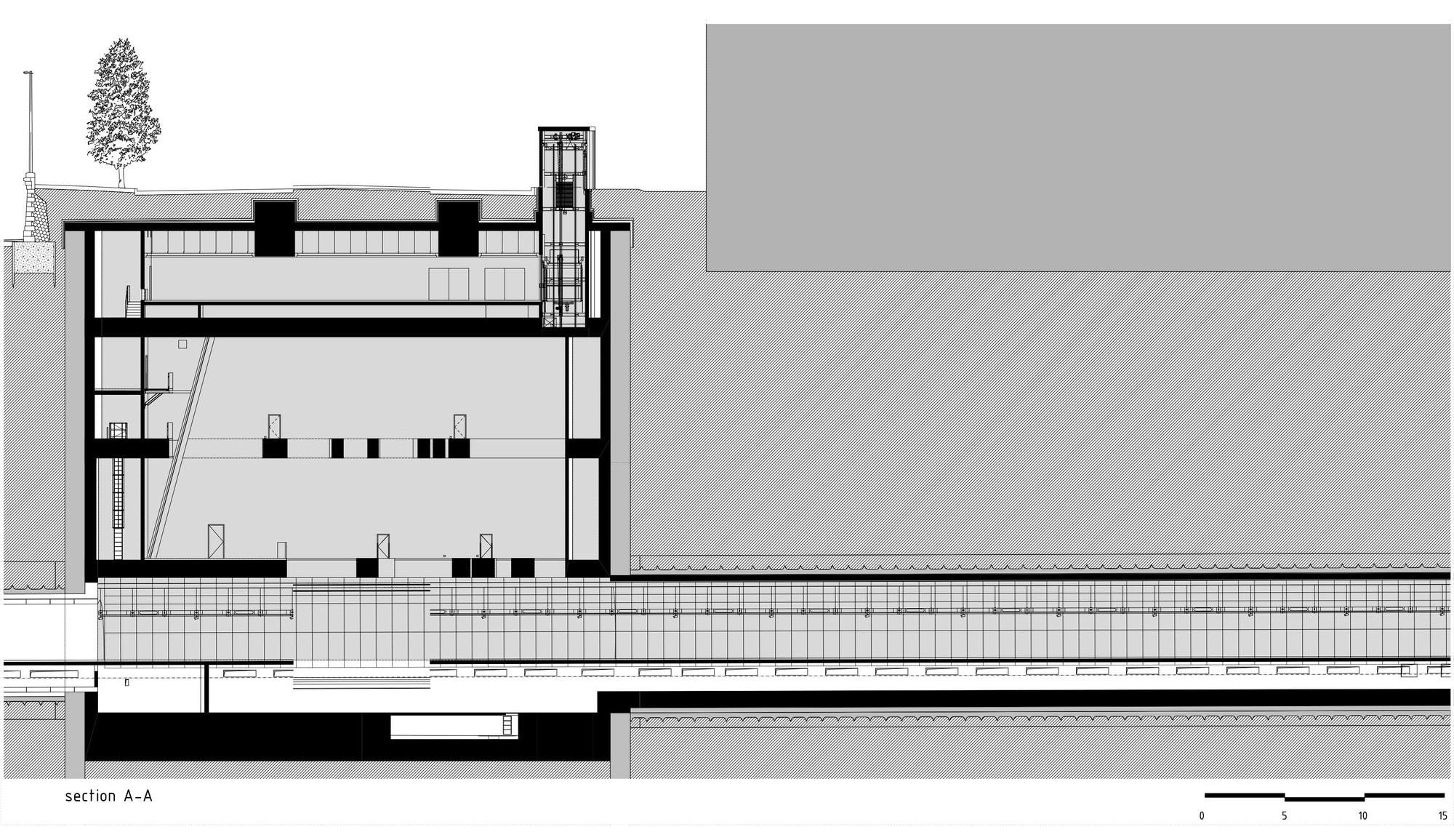
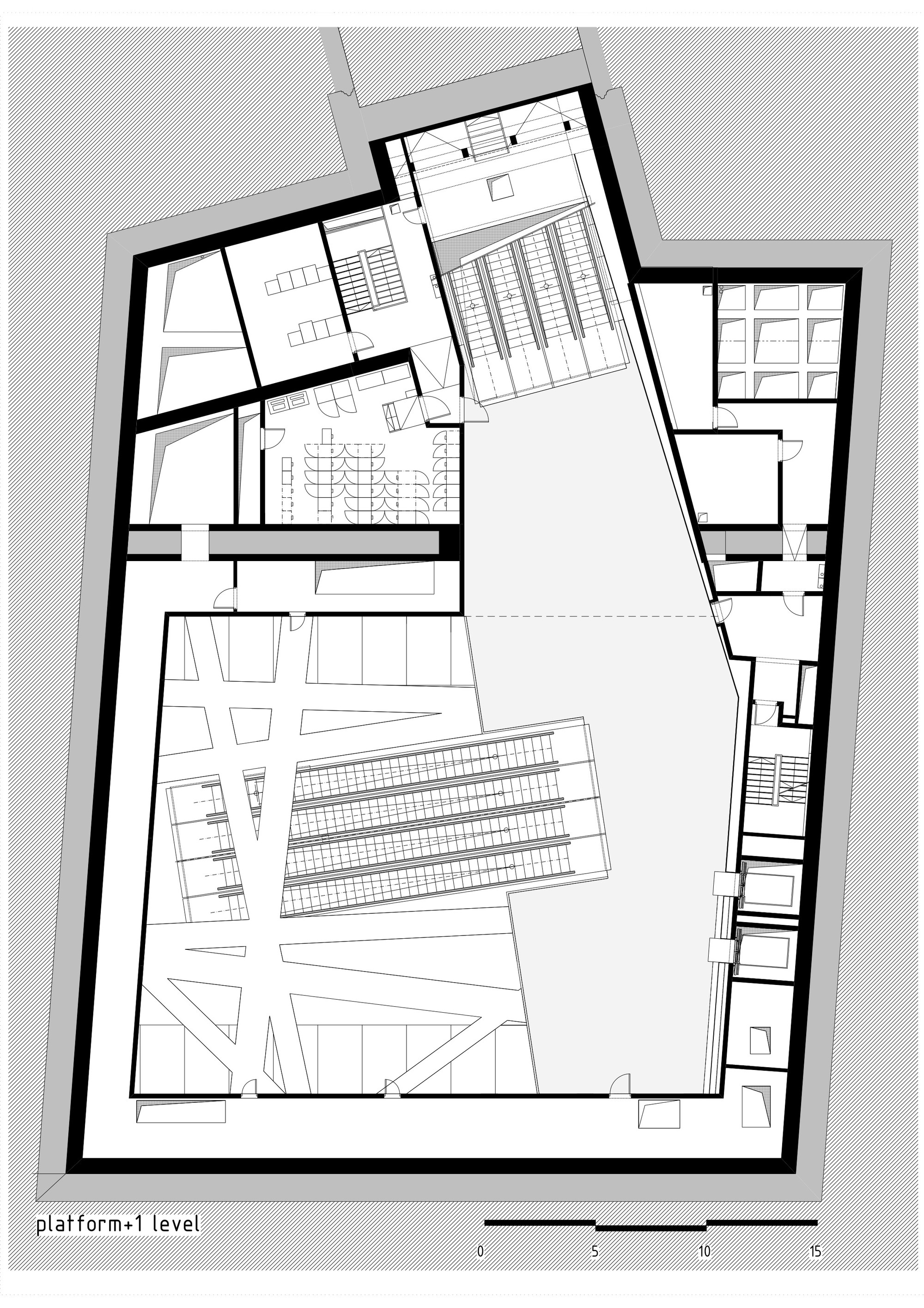
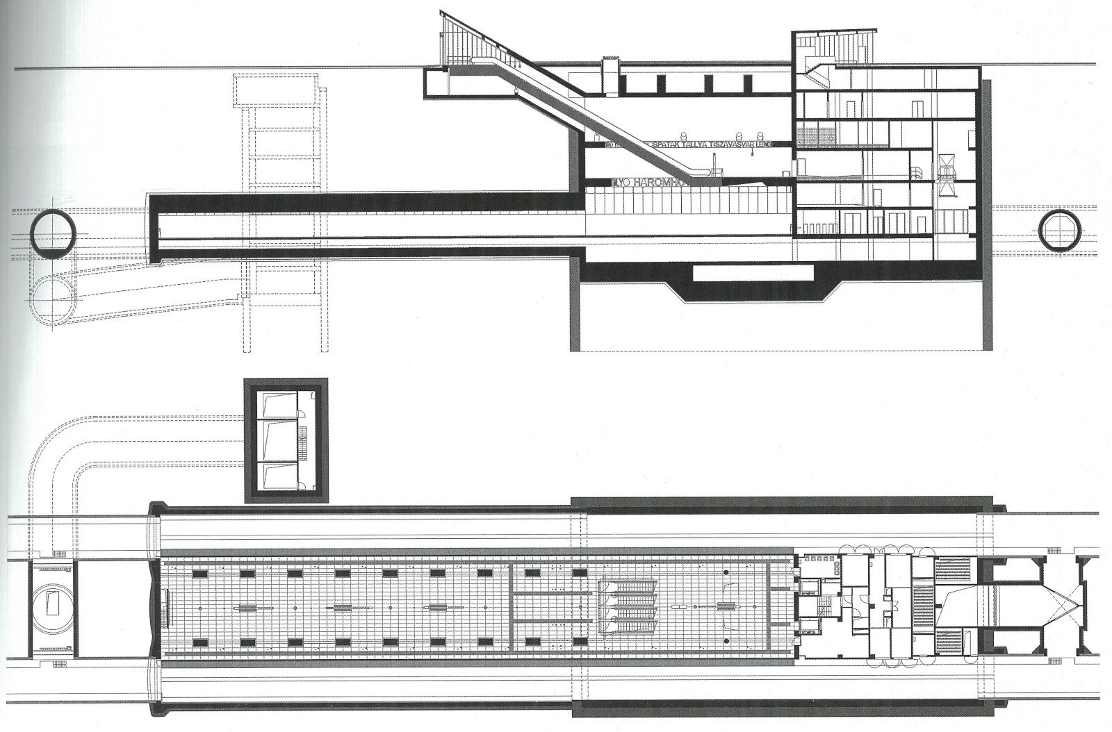
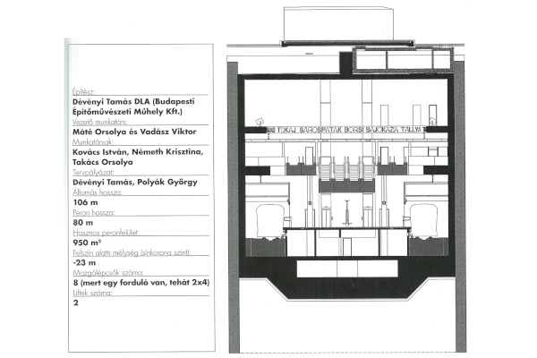
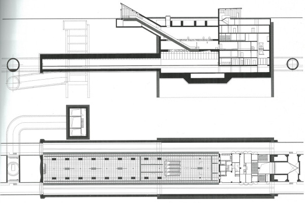
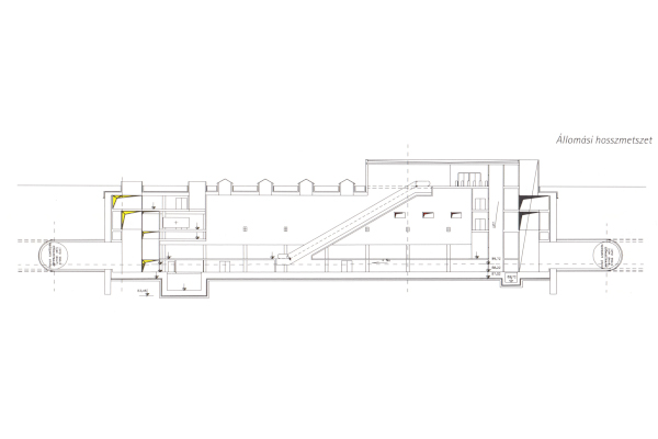
Állomások helyszínrajza, alaprajza, hosszmetszete, keresztmetszete

Képek forrása:

Kelenföld vasútállomás

Bikás park

Újbuda-központ

Móricz Zsigmond körtér

Szent Gellért tér - Műegyetem

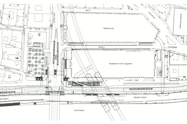
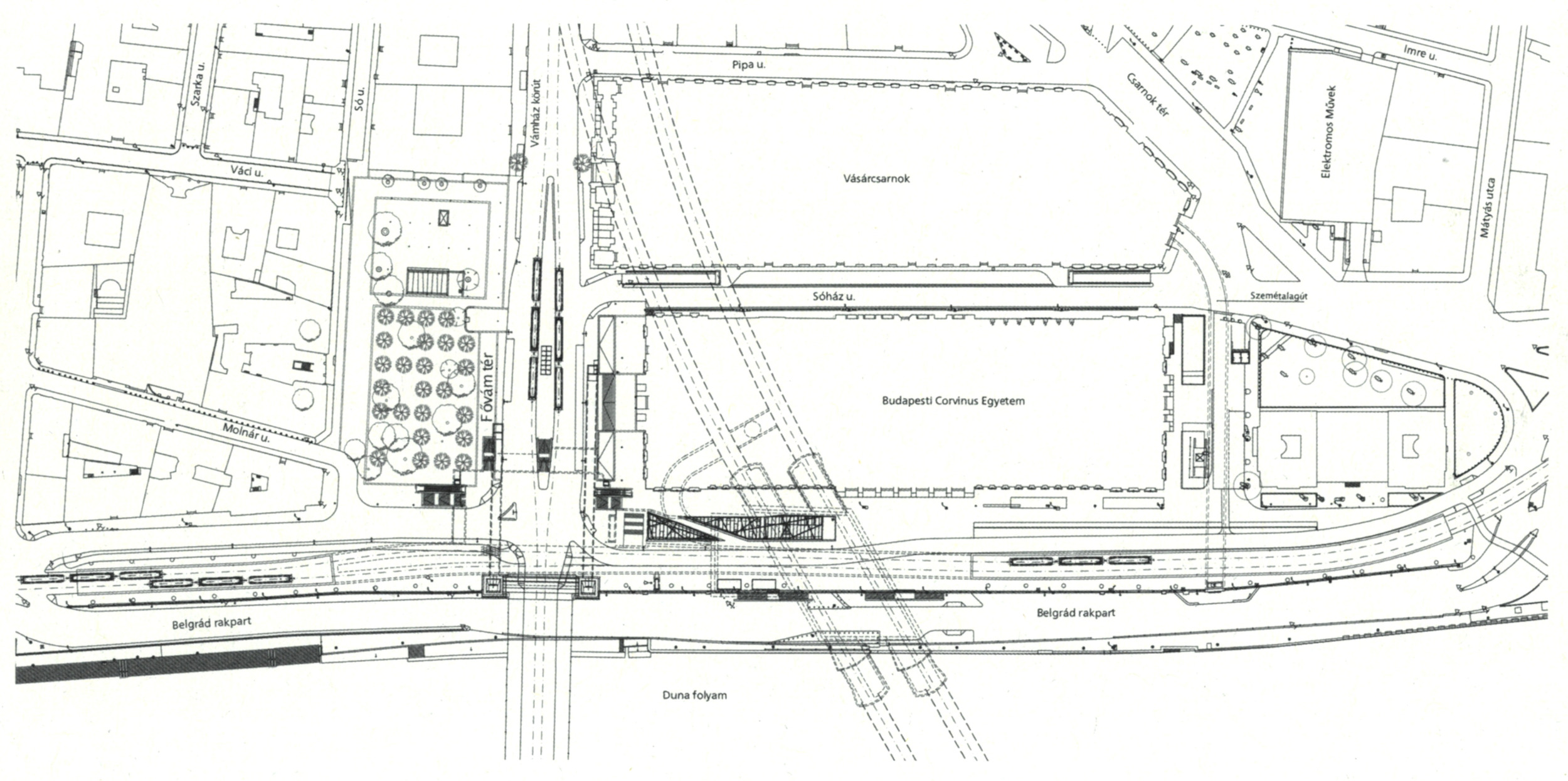
Fővám tér

Kálvin tér

Rákóczi tér

II. János Pál pápa tér

Keleti pályaudvar