galéria, M3 metróvonal, műszaki rajzok, ábrák
Tartalomjegyzék
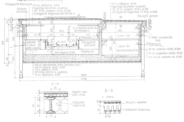
Hossz-szelvény
A Rákos-patakot keresztesző szakasz végül nem így valósult meg, a metró alagútja a Rákos-patak felett épült.
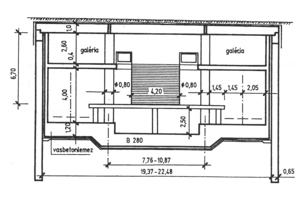
Állomások keresztmetszete
Újpest-központ
Újpest-városkapu
Gyöngyösi utca
Forgách utca
Göncz Árpád városközpont
Dózsa György út
Lehel tér
Nyugati pályaudvar
UVATERV
Deák Ferenc tér, Ferenciek tere, Corvin-negyed
UVATERV
Deák Ferenc tér, M2-M3 metró, átszállás
UVATERV
Kálvin tér
UVATERV
Semmelweis Klinikák, Arany János utca
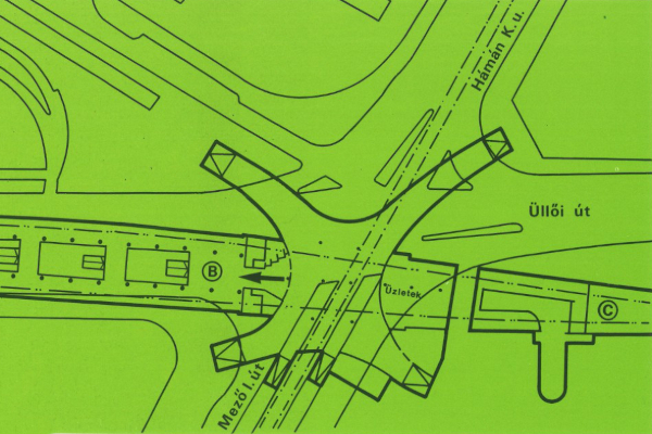
Nagyvárad tér
Népliget
Ecseri út
Pöttyös utca
Határ út
Kőbánya-Kispest
Kéreg alatti vezetésű vonalszakasz keresztmetszete
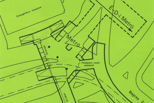
Állomások alaprajza, helyszínrajza
Dózsa György út
Nyugati pályaudvar
Deák Ferenc tér
Városi Közlekedés, 1975. 08. negyedik szám
Ferenciek tere
Kálvin tér
Corvin-negyed
Semmelweis Klinikák
Nagyvárad tér
Népliget
Ecseri út
Pöttyös utca
Határ út
Kőbánya-Kispest
Aluljárók, csarnokok
Deák Ferenc tér
Ferenciek tere
Kálvin tér
Nagyvárad tér
Népliget
Kőér utca, járműtelep
Magyar Építőművészet