galéria, M1 metróvonal, műszaki rajzok, ábrák
Tartalomjegyzék
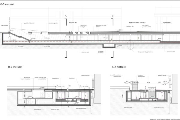
Hossz-szelvény
Városi Közlekedés, 1996. április, 36. évfolyam, 2. szám
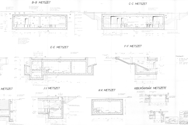
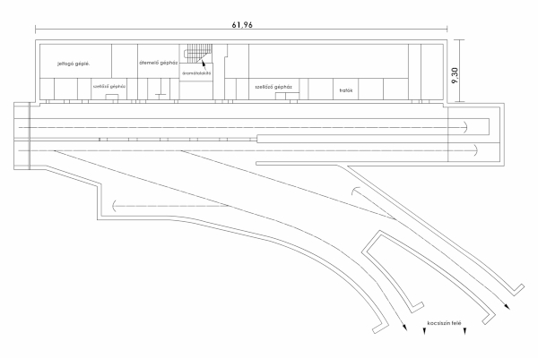
Alagutak
Városi Közlekedés, 1996. április, 36. évfolyam, 2. szám
Városi Közlekedés, 1996. április, 36. évfolyam, 2. szám
Városi Közlekedés, 1996. április, 36. évfolyam, 2. szám
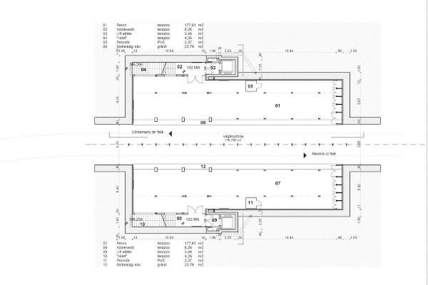
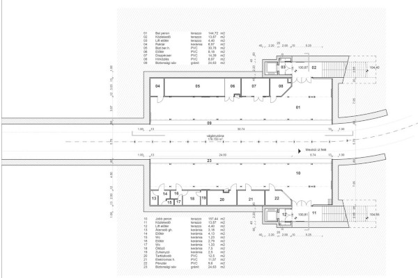
Állomások
Képek forrása: Főmterv, A föld alatti város, Városi Közlekedés, 1996. április, 36. évfolyam, 2. szám
Képek forrása: Bright Field Studios
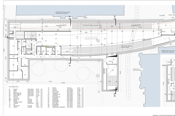
Mexikói út, járműtelep és kihúzó