Szöveg és képek forrása: BKV, Kezelési - karbantartási utasítás és oktatási segédlet
A felújításon átesett EV típusú metró motorkocsikból két típus képződött. A vezetőfülkés kocsi típusa EV/AV, fő jellemzői az 1. számú ábrán láthatóak. A vezetőfülke nélküli közbülső kocsik típusa EV/AM, fő jellemzői a 2. számú ábrán láthatóak.
A létrejött módosított típusú kocsikból a K-Ny-i vonalon 5 motorkocsis szerelvények közlekednek. Egy felújított szerelvény...
| 1. | 2. | 3. | 4. | 5. |
| EV/AV | EV/AM | EV/AM | EV/AM | EV/AV |
...kocsikból áll össze.
Az átalakítás során a kocsiszekrény teljes körű azbesztmentesítésen esett át. A korróziós károk eltávolítása érdekében, valamint a további üzemeltetés során keletkező korrózió minimalizálására a kocsiszekrény a hossztartók mentén 180 mm. szélességben körbevágva új lemezburkolattal lett ellátva. A menet közben fellépő rezgések, zajok csökkentése érdekében a kocsiszekrény padlólemeze és oldalfalai dübörgésgátló bevonatot kaptak.
Az ajtónyílások vízgyűjtőtálcái az átalakítás során beépített csőtoldalékon keresztül az alváz alá vezetik az összegyűlt csapadékvizet.
A "V" kocsik kialakításához a vezetőfülke hátfal és az utastér között hátfalszekrény került kialakításra a különböző készülékek elhelyezésére, valamint az áttekinthetőbb, hozzáférhetőbb villamosvezetékelés biztosítására. A hátfalszekrények (gardróbok) ajtói az utastér felé nyílnak.
Az "M" kocsikon az utastér kibővült a vezetőfülke megszüntetésével. A megszűnt vezetőfülke helyén 2-2 ülőhely került kialakításra. A készülékek, kezelőszervek, jelzések elhelyezésére a kibővült utastér ülései alatt, mögött, valamint az újonnan kialakított jobb- és baloldali végfalszekrényekben, ill. a felső homlokszekrényben alakítottak ki megfelelő helyet. Az alvázról leszerelésre került az eredetileg beépített mechanikus rögzítőfék minden szerkezeti eleme.
Mindkét típus oldalfalán mindkét oldalon 3 db. függőlegesen elhelyezett jelzőlámpa fogadására alkalmas helyet alakítottak ki. A motorkocsik közötti balesetmentes átjárás érdekében a homlokajtók - a "V" kocsik "A" vége kivételével szélesebb (60 mm. helyett 150 mm.) küszöbökkel lettek felszerelve.
Az utastér elrendezésénél megmaradt az eredeti hosszanti utasülés elrendezés. Az ülések kettősülés kialakításúak, különálló háttámla és ülőpárna kialakítással. A "V" kocsik és az "M" kocsik "B" végén 1-1 sarokülés került beépítésre a kettősülés mellé, az eredeti kialakításnak megfelelően. Az "M" kocsik "A" végén a végfalszekrények kialakítása miatt csak kettősülés kialakítására volt lehetőség.
Az ülések hajlított acélidomokból felépített szerkezetűek, a rugózást hullámrugók biztosítják. Az ülések borítása lángmentesített, vízlepergető tulajdonságú textília.
Az ülések zárható kivitelűek, zárásuk és nyitásuk a háromszögletű kulccsal történik. A háttám és az ülőpárna egymáshoz reteszelve kapcsolódnak, így a háttám csak az ülőpárnák nyitása és 50-60 mm-es kihúzásával emelhető ki a helyéről.
A kocsik eredeti kapaszkodó rendszere változatlanul visszaépítésre került, kiegészítve az ülésvégfalaknál egy-egy függőleges kapaszkodórúddal.
A kocsikba az eredeti végfalak kerültek visszaszerelésre, az "M" kocsik új utasrészében az ülésvégfalak üvegszálerősítésű műanyagból készültek.
Az ülésvégfalak fölé edzett üvegből készült szélfogó-paravánok kerültek beépítésre.
Az audiális utastájékoztatást kiegészíti az utastérben elhelyezett 3 db. FOK-GYEM gyártmányú vizuális - a BKV. egyéb járművein már alkalmazott - utastájékoztató tábla. A kocsi hossztengelyére merőlegesen az "A" és "B" végeken 1-1 egyoldalas, középen 1 db. kétoldalas tábla tájékoztat a mindenkori megállókról, ill. az átszállási kapcsolatokról.
A forgóvázon az utastér felöl végzendő beállítási munkákhoz, valamint a vontatómotorok bekötéseinek szereléséhez egységes méretű, könnyen kezelhető "IKARUS" rendszerű szerelőfedelek kerültek beépítésre. A szerelőfedelek táblaszerkezete megegyezik a kocsi padlószerkezetével.
A felújított járművek háromszög kulccsal lezárt köztes homlokajtói veszély esetén a vonat álló helyzetében az ajtók keretébe épített mágneszár oldásával központilag kireteszelhetők. A "V" kocsik vezetőfülke homlokajtóira a központi kireteszelés nincs hatással továbbra is háromszög-kulccsal nyithatók.
A központi kireteszelés után az utasok a járművezető utasítására az ajtókat kézzel, a kilincs lenyomásával nyithatják. Így a szerelvény teljes hosszában átjárhatóvá válik, veszély esetén az utasok a szerelvény további kocsijaiba közlekedhetnek.
A kireteszelt ajtók mindaddig nyitott állapotban maradnak, míg a személyzet a vezetőfülkéből vissza nem állítja a zárt helyzetet. A zárt helyzet visszaállítása után végighaladva meg kell győződni egyenként az átjáróajtók zárt helyzetéről a teljes szerelvényen.
A mágneszáras reteszelés műszaki kialakítása olyan, hogy veszély esetén, a 72 V-os tápfeszültség bármely műszaki okból történő megszűnésével az ajtók a kilincs lenyomásával nyithatóvá válnak.
Az átalakítás során a vezetőfülke nagysága az eredeti funkcionális elrendezés mellett (segédvezetői, valamint vezetői oldal) változatlan maradt. A vezetőfülke készülékeinek elrendezése áttekinthetőbbé vált, funkcionálisan egységekbe foglalt.
A vezetőfülke különböző kezelőegységei az alábbi ábrákon látható:
A gardróbszekrények utastérbe nyíló ajtóinak nyitása a vezetőfülkéből történik az EV3-as típusokéhoz hasonló kilincsszerkezet segítségével.
A vezetőfülkébe a már beépített, komfortot biztosító berendezések megtartása mellett (naproló, vezetőülés) további komfortnövelő egységek, anyagok kerültek beépítésre:
A közbülső kocsikon a működtetéshez szükséges készülékek elhelyezésére a homlokablakok alatt egy-egy végfalszekrény, a homlokablakok és az átjáróajtó feletti részen homlokszekrény került kialakításra.
A homlokszekrény háromszögkulccsal nyitható, ill. zárható. A végfalszekrények a 81.714 típusú kocsikon alkalmazott szerkezeti megoldással nyithatók, ill. zárhatók.
A végfalszekrények és a homlokszekrény kialakítása és készülék elrendezése az alábbi ábrákon látható:
A belső burkolatok anyagainak megválasztásánál, valamint burkolatokat hordozó tartóelemeknél egyik kiemelten fontos szempont volt az alkalmazott anyagok tulajdonságainak fokozott tűzállósága.
A másik hangsúlyos szempont az alkalmazott anyagok égés közbeni minimális toxikus gáz kibocsátása volt.
Harmadsorban, de a fentiekkel egyenértékűen fontos szerepet játszott a kiválasztott anyagok fokozott vandálállósága (grafiti, karcolások, vagdosások, stb.).
A belső burkolás az oldalfalakon, valamint a homlokfalakon 4 mm. vastag, az utastér mennyezetén 3 mm. vastag, RESOPAL F típusú, nagyszilárdságú, égésgátolt, toxikus gázokat nem fejlesztő kemény műanyaglemez. Az alkalmazott burkolóanyagok kielégítik a DIN 4102 Teil1. szabvány B1 követelményeit.
A mennyezetbe épített fabetéteket lánggátló és vízálló, gombásodást gátló bevonattal kezelték.
A padlózat összetett szerkezetű, többrétegű, rezgéscsillapított 15 mm. vastag táblákból épül fel. A táblák két rétegelt falemezből, valamint a közéjük üvegszövet-hálóval ragasztott rezgéscsillapító parafarétegből állnak. A táblák láng- és gombamentesítő kezeléssel ellátottak.
A padlótáblák és az oldalfalak találkozása, valamint a csőáthatolások rugalmas tömítőanyaggal kitöltve biztosítják a megfelelő vízzáróságot.
A padlótáblákra 2 mm. vastag ALTRO-MET típusú kopóréteg van felragasztva, mely igen jó csúszásgátló tulajdonsággal rendelkezik. A kopóréteg tűzállósága kiváló, toxikus gáz kibocsátása alacsony, megfelel a csatornaalagúthoz kidolgozott francia NF F16-101.sz. tűzvédelmi szabvány szigorú követelményeinek.
Az ülésszerkezet felülről posztó (filc) lemezzel, valamint vastag szilikonborítással van ellátva. Erre a felületre kerül a felső szövegréteg, mely vízlepergető tulajdonságú, anyaguk kereskedelmi vegyszerekkel jól tisztítható. Az üléspárnák anyagai égésgátoltak, egészségkárosító toxikus gázokat nem fejlesztenek, megfelelnek a UIC 564- 2/A szabvány előírásainak.
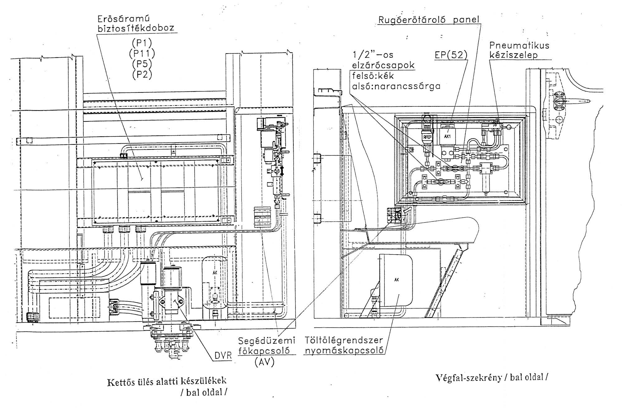
A kocsik átalakítása során egyes készülékek funkcionálisan megszűntek, ugyanakkor új készülékek kerültek felszerelésre, így szükségessé vált - egyes készülékek, berendezések - alváz alatti elhelyezésének módosítása.
Mindkét kocsitípusra ("V" és "M") felszerelésre került az MST 850/72/24.típusú DC-DC segédüzemi átalakító, valamint a rugóerőtárolós rögzítőfék 25 1-es kiegészítő légtartálya. Mindkét típuson új típusú főbiztosítószekrény került felszerelésre a régi helyén.
A "V" kocsikon az utastájékoztató berendezés energiaellátására 1 db. 24 V-os, 85Ah-s akkumulátoregység került beépítésre a meglévő 72 V-os 85 Ah- s akkumulátoregység mellé. Így szükségessé vált ezeken a kocsikon az egyik 55 1-es segédlégtartály elhelyezésének módosítása. A tartály átkerült az 5. kereszttartóhoz a 25 1-es kiegészítő légtartály mellé a jármű hossztengelyével párhuzamosan.
Az Ev típusú motorkocsik fékrendszerébe a kor tervezési előírásainak megfelelően - nem építettek be rugóerőtárolós féket. A korszerű városi vasutak biztonsága megköveteli a rugóerőtárolós féket. Az Ev típusok forgóvázait a J3 főjavítás során rugóerőtárolós fékkel egészíttették ki.
A rugóerőtárolós féket a forgóvázra hegesztett konzolra szerelték fel úgy, hogy a motorkocsik 1. és 4. tengelyét fékezi. Gyakorlatilag rögzítőfék, így képes a szerelvényt 40%-os lejtőn teljes utasterheléssel álló helyzetben megtartani, amennyiben légveszteség miatt a légfékrendszer már nem látja el feladatát.
Az Ev/AV és Ev/AM típusokra felszerelt rugóerőtárolós fék konstrukciója megegyezik a 81. típusokon már alkalmazott gyári egységekkel.
A rugóerőt oldja a töltővezeték nyomása, a 81-es típusokon is ismert csavarorsó, illetve az új követelményeknek megfelelően oldható a fék központilag is, a járművezető kezelésével.
A rugóerőtárolós fékek bármelyikének befogott állapotát a motorkocsik külső oldalfalán, a vezetőpulton és a segédvezetői kezelőtáblán borostyán sárga jelzőfény mutatja. Ugyanez a jelzőfény mutatja a szerelvény üzemi fékezett állapotát is. A rugóerőtárolós fékek üzemhibájából adódó befogott állapot a vontatást nem tiltja le, így veszély esetén a vezetőnek lehetősége van akár álló (befékezett) kereket is húzva a következő állomásig eljuttatni a szerelvényt.
Az átalakítás során az eredeti kardánkereszt-kardánvilla rendszerű tengelykapcsolókat a LÖBRO gyár tengelykapcsolójával váltották ki.
A LÖBRO rendszerű tengelykapcsolók u.n. homokinetikus kivitelűek, a nyomatékot rezgések és járulékos erők nélkül adják át. A konstrukció max. 10 mm. egytengelyűség eltérést és 2,5° szögeltérést képes üzemszerűen áthidalni.
Az új tengelykapcsoló számított futásteljesítménye igen magas, kb. 1 millió km. Ez az eddig alkalmazott tengelykapcsoló élettartamának 2-3-szorosa.